Срок строительства: от 85 до 165 дней.
Гарантия: 12 месяцев.
Интересует более благоустроенный, стильный и комфортабельный дом?
Посмотрите Деревянный дом "Кардинал".
|
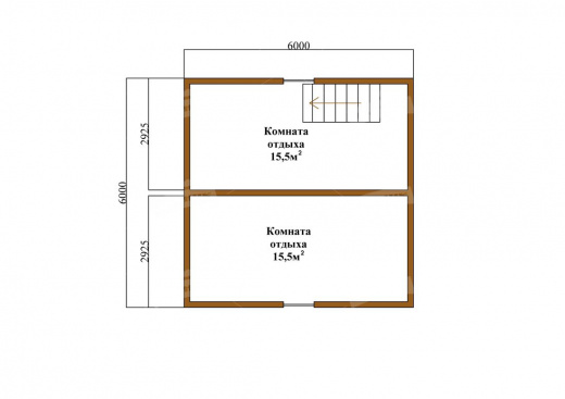
Площадь
|
84 |
|
Этажей
|
2 |
|
Жилая площадь
|
79 |
|
Количество спален
|
3 |
|
Размер
|
6 х 8 м |
| Стены |
Каркас - доска, утеплитель 100 мм., пароизоляционная мембрана, ветрогидрозащитная мембрана. Внутренняя отделка ГКЛ. Отделка фасада имитация бруса. |
| Перегородки |
Каркас - доска, утеплитель 100 мм., пароизоляционная мембрана. Отделка ГКЛ. |
| Пол |
Каркас - брус/доска, утеплитель 100 мм., пароизоляционная мембрана, ветрргидрозащитная мембрана. Черновой пол - доска, чистовой - фанера. |
| Потолок |
Каркас - доска, утеплитель 100 мм., пароизоляционная мембрана. Высота внутри помещения 2300 мм. |
| Окна | Пластиковые, двухкамерный стеклопакет, подоконники. |
| Двери | Входная - металлическая, внутренние двери - нет. |
| Кровля |
Каркас - доска, ветрогидрозащитная мембрана, обрешетка. Металлическая черепица. |
| Веранда | Стойки из бруса, на полу шпунт сосна. |
| Для домов с мансардным этажом дополнительно: | |
|
М\Э перекрытие |
Каркас - доска утеплитель 100 мм., пароизоляционная мембрана. Черновой потолок первого этажа доска. Черновой пол второго этажа - доска, чистовой - фанера. Устройство лестничного проема. Высота внутри обоих этажей не больше 2300 мм. |
| Кровля | Утепление по стропилам 100 мм, отделка ГКЛ. |
| Лестница | Отсутсвует. |
Вы можете приобрести данный проект для самостоятельного строительства. Мы поможем вам разобраться в проекте и вы с легкостью построите этот объект сами.
Дом под ключ с верандой всегда выглядит привлекательно и идеально подойдет для небольших участков. Однако он еще и функционален. Крыльцо защитит вас в непогоду, пока вы будете открывать дверь. Кроме того, на крылечке можно оставлять обувь или красиво расставить горшки с цветами. Сам дом имеет большую комнату для отдыха и кухню столовую. Это очень удобная планировка. При желании можно будет зонировать пространство.
Для возведения дома используется каркасная технология. Все работы можно провести в относительно короткие сроки. Качество при этом остается на высоте. Для строительства используются проверенные безопасные материалы.
|
Стены |
Каркас – брус, обработан огнебиозащитным составом. Доска, утеплитель 100 мм., пароизоляционная мембрана, ветрогидрозащитная мембрана. Облицовка стен внутри ГКЛ. Перегородка 1 шт, 100 мм. Фасад: фальш - брус. |
|
Пол |
Каркас – брус, обработан огнебиозащитным составом. OSB, утеплитель 150 мм., пароизоляционная мембрана, ветрогидрозащитная мембрана. Чистовой - фанера. |
|
Потолок |
Высота 2700 мм. Каркас – брус, обработан огнебиозащитным составом. Доска, утеплитель 150 мм., пароизоляционная мембрана, внутренняя отделка ГКЛ. |
|
Окно |
2 шт, размер 2000*1600 мм. Пластиковые, двухкамерный стеклопакет. |
|
Двери |
Входная - металлическая, производство Россия. Внутренняя 1 шт., ламинированная. |
|
Крыша |
Металлочерепица, цвет на выбор. Каркас – брус, обработан огнебиозащитным составом. Доска, ветрогидрозащитная мембрана. Подфасадная вентиляция. |
|
Электрика |
Оплачивается дополнительно. |
|
Веранда |
Размер 1500*4000 мм., брус, доска, шпунт. |
Все рассчитывается индивидуально. Поменять можно все, планировку, двери, окна, размер, материал.
Большие окна в доме под ключ приближают его к природе, через них поступает больше солнечного света, свежего воздуха. К тому же через них могут открываться прекрасные виды. В таком доме хорошо отдыхать, восполнять силы. Данный дом, кроме больших окон имеет еще и просторную веранду, такая стилистика очень близка к европейской. Веранда в таком доме – отличное место для того, чтобы разместить там зону для принятия пищи или отдыха с близкими людьми.
