Строительство домов из газоблоков под ключ в Челябинске от ПСК Гончаренко
С 2012 года возводим энергоэффективные дома для круглогодичного проживания. Гарантия 10 лет. Ипотека от 6%. Фиксированные цены в договоре.
Почему газобетон?
Газоблок — современный материал, сочетающий прочность, теплоизоляцию и доступную стоимость. ПСК Гончаренко реализовала более 200 проектов домов из газобетона в Челябинске и области. Наши клиенты выбирают нас, потому что:
- Скорость строительства — коробка дома готова за 2–3 месяца;
- Экономия на отоплении — теплопроводность газоблока в 3 раза ниже кирпича;
- Сейсмоустойчивость — материал выдерживает нагрузки до 9 баллов;
- Экологичность — блоки из натуральных компонентов без токсичных примесей.
Строительство домов из газоблоков под ключ — оптимальное решение для тех, кто ценит долговечность и рациональный бюджет.
Проекты домов из газобетона: типовые и индивидуальные
1. Типовые решения
В каталоге — готовые проекты с чёткими параметрами и фиксированной стоимостью.
Примеры:
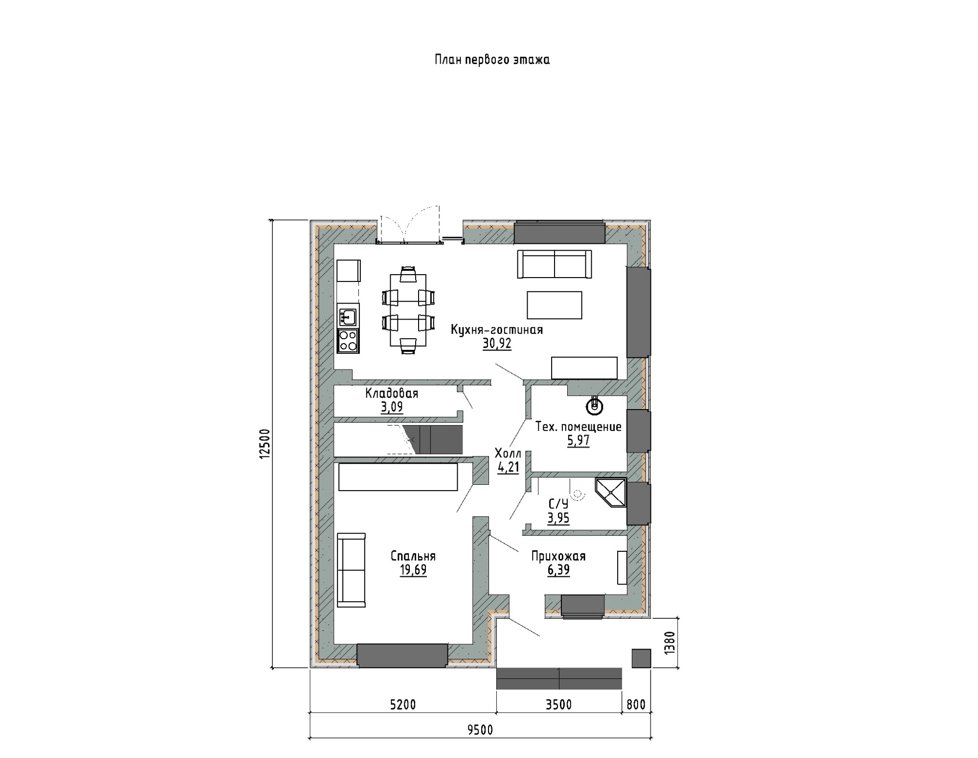
- (КД5) Дом из газоблока 64 м2: спальня, кухня-гостиная, санузел — от 4 150 000 руб.;
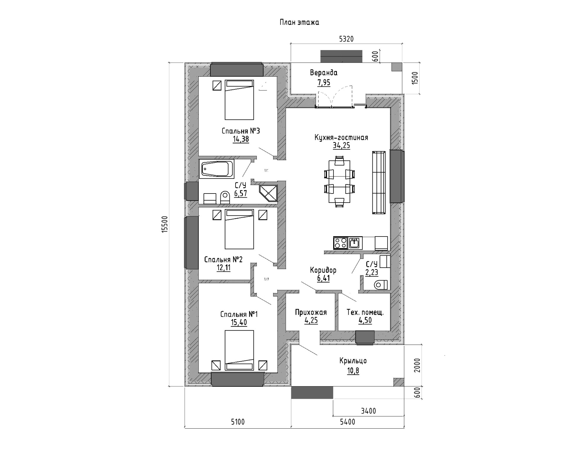
- (КД3) Дом из газоблока 90 м2: 3 спальни, кухня-гостиная, котельная, саунзел — от 5 390 000 руб.;
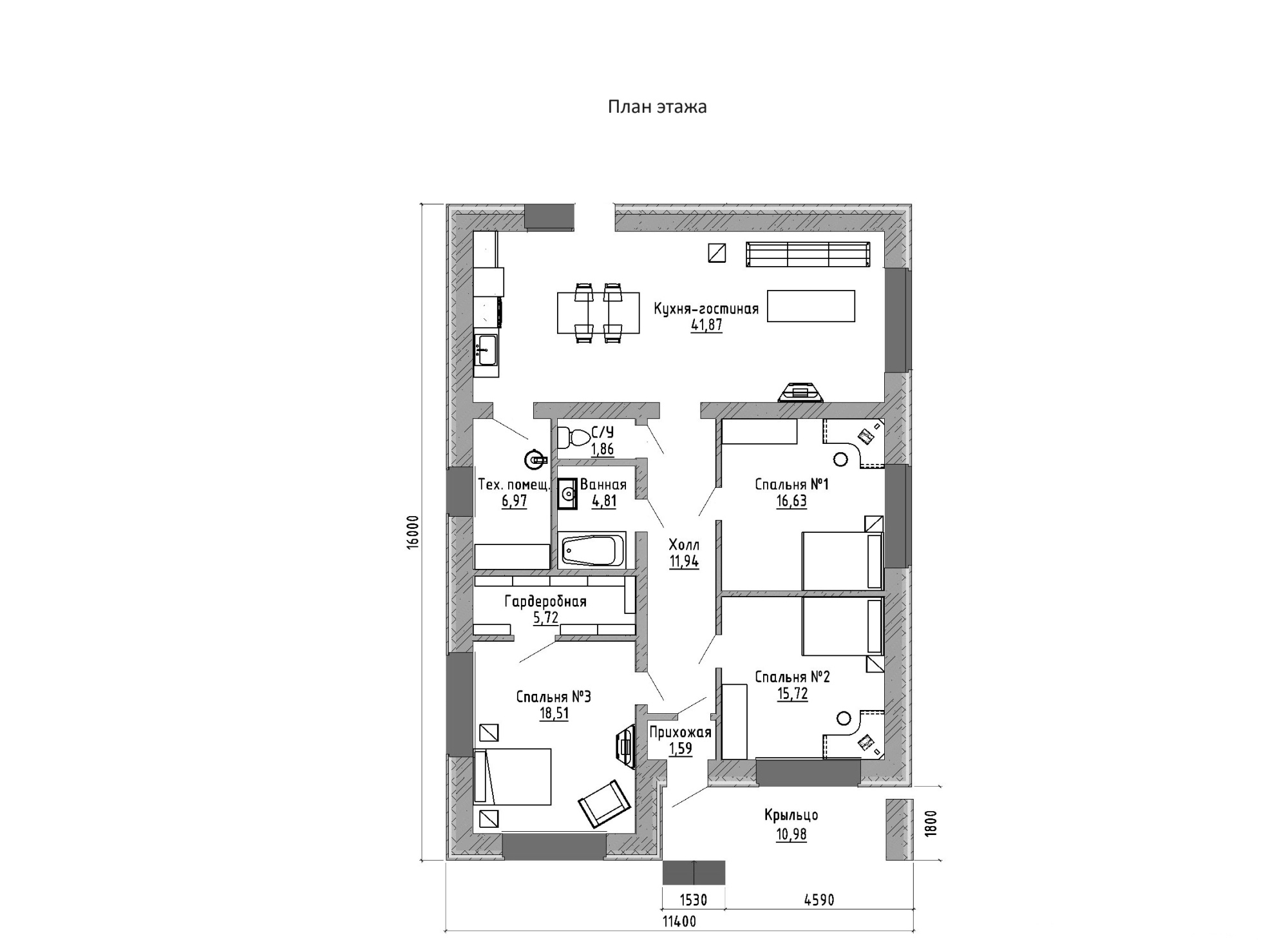
- (КД32) Дом из газоблока 135 м2: 3 спальни, кухня-гостиная, котельная, 2 саунзла, бойлерная — от 7 145 000 руб.
Цены на строительство домов из газоблоков под ключ в Челябинске стартуют от 4,15 млн руб. и зависят от площади, сложности планировки и отделки.
2. Индивидуальные проекты
- Архитектурная свобода: эркеры, панорамные окна, второй свет;
- Двухэтажные дома из газобетона под ключ площадью до 300 м²;
- Учёт особенностей участка: уклон, тип грунта, ветровые нагрузки.
Популярные запросы:
- Дома с гаражом и мастерской;
- Проекты с мансардой и балконами;
- Энергоэффективные решения с рекуперацией тепла.
Этапы строительства
- Бесплатный выезд геодезиста — анализ грунта, выбор фундамента (ленточный, плитный, свайный).
- Проектирование — 3D-визуализация, расчёт нагрузок, согласование сметы.
- Заключение договора — фиксация сроков (от 4 месяцев) и стоимости.
- Возведение дома — кладка блоков, монтаж перекрытий, кровельные работы.
- Отделка — штукатурка, установка окон, разводка коммуникаций.
- Сдача объекта — подписание акта, передача технической документации.
Преимущества газобетонных домов
- Теплоизоляция — стены из газоблока толщиной 400 мм сохраняют тепло как кирпичная кладка 1,5 м. Экономия на отоплении — до 40%.
- Паропроницаемость — материал «дышит», предотвращая сырость и образование плесени.
- Огнестойкость — выдерживает прямой контакт с огнём 2–3 часа без потери прочности.
- Долговечность — срок службы конструкций — 80–100 лет.
- Шумоизоляция — поглощает до 60 дБ — идеально для домов у дорог.
Ипотека и финансирование
ПСК Гончаренко — аккредитованный партнёр 6 банков, включая Сбербанк, ВТБ и Дом.РФ. Условия для клиентов:
- Семейная ипотека — ставка от 6% на готовые проекты;
- Материнский капитал — в качестве первоначального взноса;
- Гарантия лучшей цены — фиксация стоимости в договоре.
Частые вопросы
- Вопрос: Можно ли строить зимой?
- Ответ: Да. Используем морозостойкие смеси и укрывные материалы.
- Вопрос: Нужна ли дополнительная отделка фасада?
- Ответ: Рекомендуем облицовку кирпичом или штукатуркой для защиты блоков.
- Вопрос: Есть ли готовые проекты домов из газобетона с мансардой?
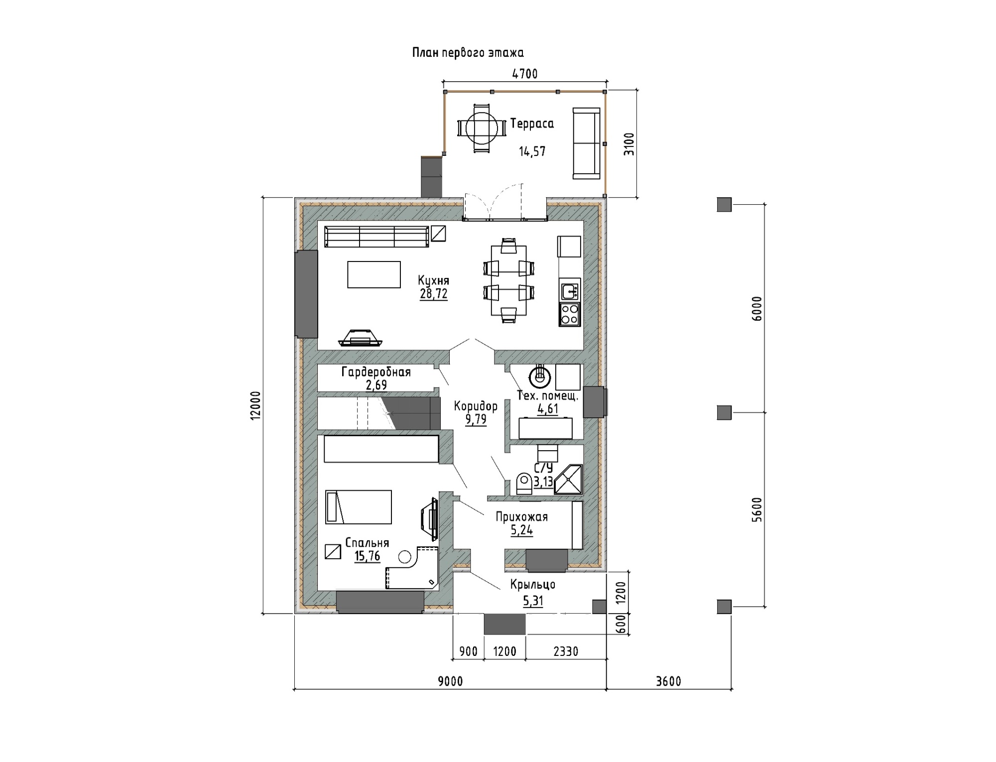
- Ответ: Да. Например, (КД1) Дом из газоблока 205 м² — мансарда, балкон и котельная.
- Вопрос: Какие документы выдаются после сдачи?
- Ответ: Техпаспорт, гарантийный талон, акты ввода коммуникаций.
Почему мы?
- Собственный штат строителей — никаких субподрядчиков;
- Контроль качества — еженедельные фотоотчёты;
- Комплексный подход — от проекта до ввода дома в эксплуатацию.
Как начать строительство?
- Позвоните нам:
+7 (351) 223-70-93
+7 (351) 232-84-23
+7 (919) 123-70-93 - Получите бесплатную консультацию инженера.
- Выберите типовой проект или закажите индивидуальный.
📍 Челябинск, ул. Яблочкина, 9, оф. 14
✉️ info@psk-goncharenko.ru
🕒 Режим работы: Пн-Пт 9:00–19:00
