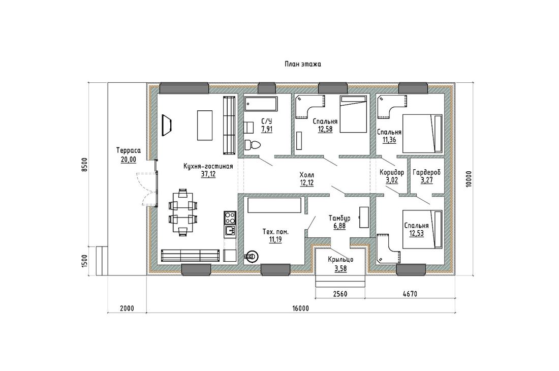
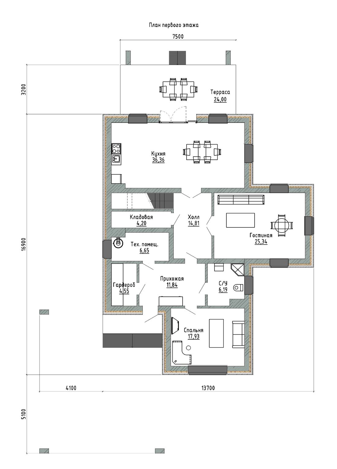
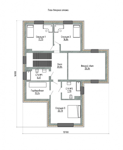
(КД17) Дом из газоблока 426 м2
Тип постройки: Дом из газоблока 17,8 х 16,9 м.
Строим в ипотеку с эскроу - счетом: Дом РФ и Сбербанк.
Подробности
Строим в ипотеку с эскроу - счетом: Дом РФ и Сбербанк.
Характеристики
Площадь
—
426 м2
Размер
—
17,8 х 16,9
Этажей
—
2
(КД17) Дом из газоблока 426 м2
Опыт и навыки
Опыт работы в загородном строительстве более 11 лет. Мы не только строим дома с нуля, а также производим сложные реконструкции домов.
Контроль качества
На всех строительных объектах работает собственный технический надзор, контролируя и фиксируя все этапы строительства и качество используемого материала.
Официальная гарантия
Мы несём полную юридическую ответственность за выполнение своих обязательств перед клиентами. У нас все официально – договор, акты, сроки, реальная гарантия до 5 лет.
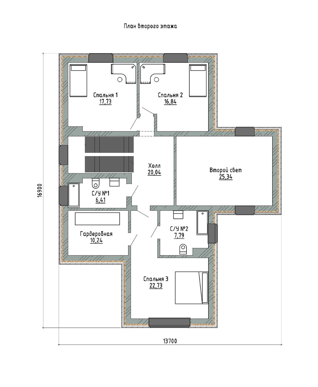
Характеристики
|
Площадь
|
426 м2 |
|
Этажей
|
2 |
|
Количество спален
|
4 |
|
Гараж
|
на 2 машины |
|
Размер
|
17,8 х 16,9 |
|
Жилая площадь, м²
|
260 |
|
Площадь кухни, м²
|
37 |
|
Количество санузлов
|
3 |
|
Срок строительства, дней
|
240 |
Комплектация "Холодный контур"
Стоимость рассчитывается индивидуально.
В данной комплектации вам необходимо подвести коммуникации, утеплить фасад, сделать внутреннюю и внешнюю отделку.| Что входит в стоимость: | |
| Проект | Эскизный проект. |
| Фундамент | УШП ( утеплённая шведская плита) - толщина утепления 100 мм,толщина монолитной плиты 250 мм. |
| Стены, перегородки | Газобетонные блоки, плотность D500. Стены 300 мм, несущие перегородки 200 мм. Остальные перегородки 150 мм. |
| Пол | Черновой. |
| Кровля | Усиленная стропильная система, доска, кровельная мембрана, контробрешетка, обрешетка с шагом под металлическую черепицу. Утепление потолочного перекрытия 200 мм. Металлическая черепица с коньковыми, фронтонными и карнизными планками. |
| Окна, двери | Окна пластиковые, двухкамерный стеклопакет, профиль 70 мм. Москитные сетки. Входная дверь металлическая с терморазрывом. |
| Дополнительно: | |
| Инженерные коммуникации: | Не входят в стоимость и рассчитываются индивидуально. |
| Терраса, крыльцо | Рассчитывается индивидуально. Стоимость зависит от размера, конфигурации и материала. |
Комплектация "Предчистовая отделка"
Стоимость рассчитывается индивидуально.
В данной комплектации вам останется только выполнить чистовую отделку внутри дома.
|
Что входит в стоимость: |
|
| Проект | Эскизный проект. |
| Фундамент | УШП ( утеплённая шведская плита) - толщина утепления 100 мм., толщина монолитной плиты 250 мм. |
| Стены, перегородки | Газобетонные блоки, плотность D500. Стены и несущие перегородки 300 мм. Остальные перегородки 150 мм. |
| Фасад | Фасад стен утеплен базальтовым утеплителем, толщина 100 мм, плотность 100 кг/м3. Фасадная штукатурка с покраской, цвет на выбор. Фасад фронтонов - имитация бруса, обработан цветным антисептиком. |
| Пол | Стяжка под чистовое покрытие 50 мм. |
| Кровля и фронтоны | Усиленная стропильная система, доска, кровельная мембрана, контробрешетка, обрешетка с шагом под металлическую черепицу. Утепление потолочного перекрытия 200 мм. Металлическая черепица с коньковыми, фронтонными и карнизными планками. Фронтон каркасный из доски без утепления. |
| Внутренняя отделка | Черновая штукатурка. |
| Окна, двери | Окна пластиковые, двухкамерный стеклопакет, профиль 70 мм. Входная дверь металлическая с терморазрывом. |
| Инженерные коммуникации: | |
| Водоснабжение | Скважина до 30 м., подключение дома к водоснабжению 1 точка. |
| Канализация | Переливная выгребная яма из 4 жби колец., подключение дома к канализации 1 точка. |
| Электромонтажные работы | Устройство ВРУ. |
| Отопление | Электрический котёл отопления, мощность 9 кВт. Тёплый водяной пол. |
| Вентиляция | Естественная вентиляция через каналы воздуховодов, выходящие через кровлю. |
| Дополнительно: | |
| Терраса, крыльцо | Рассчитывается индивидуально. Стоимость зависит от размера, конфигурации и материала. |
Фото готовых объектов
1/2
—
Ипотечный калькулятор
- Размер кредита
- 0 ₽
- Процентная ставка
- 0%
- Ежемесячный платеж
- 0 ₽
₽
₽
мес.
- Размер кредита
- 0 ₽
- Процентная ставка
- 0%
- Ежемесячный платеж
- 0 ₽
График платежей
- Месяц
- Ежемесячный платеж
- Выплата процентов
- Выплата долга
- Остаток долга
- Погашенный долг
Выполненные работы
Вам может понравиться
Отзывы клиентов
